Pasport historické usedlosti Nikolajka, Praha 5

Pasport historické usedlosti Nikolajka, Praha 5
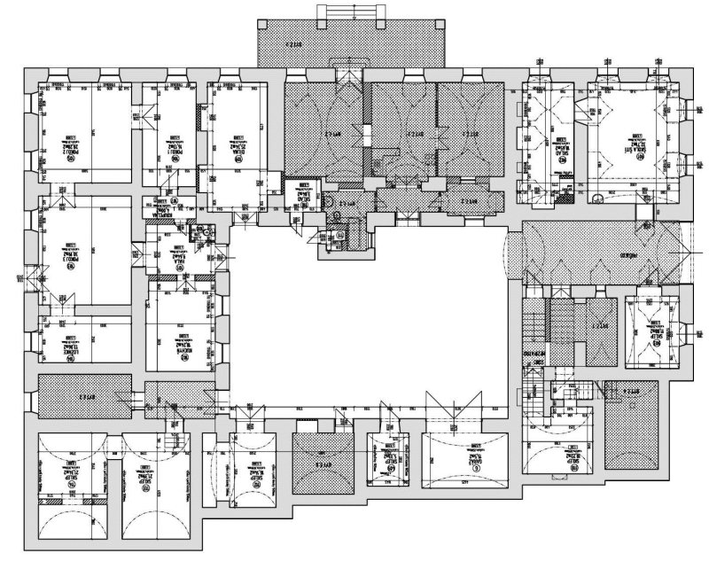
Zaměření stávajícího stavu bytových jednotek a společných prostor historické budovy, 2008
Ing. Eva Krejcarová | www.czprojekty.cz | Mobil: 724-246-397 | E-mail: e.krejcarova@seznam.cz
Copyright©2013 Kotyskova.com | Designed by Flash Templates | Powered by Kentico CMS